Y42X-1.6-DN15,Y42X-1.6-DN20,Y42X-1.6-DN25,Y42X-1.6-DN32,Y42X-1.6-DN40,Y42X-1.6-DN50,弹簧薄膜式减压阀
一、Y42X弹簧薄膜式减压阀概述:
Y42X弹簧薄膜式减压阀结构特点
本系列减压阀属于直接作用式薄膜弹簧减压阀。主要由调节弹簧、膜片、活塞、阀座、阀瓣等零件组成。利用膜片直接传感下游压力驱动阀瓣,控制阀瓣开度完成减压稳压功能。
本产品在城市建筑、高层建筑的冷热供水系统中,可取代常规分区水管,节省设备。也可在通常的冷热水管网中,起减压稳压作用。

本产品调压、稳压动作平稳,适用于水和非腐蚀性液体介质的管路。弹簧薄膜式减压阀主要技术参数弹簧薄膜式减压阀主要零件材料公称压力(Mpa)1.01.62.5壳体试验压力(Mpa)*1.52.43.75密封试验压力(Mpa)1.01.62.5较高进口压力(Mpa)1.01.62.5出口压力范围(Mpa)0.2-0.80.2-1.00.4-1.6压力特性偏差(Mpa)△P2PGB12244-1989流量特性偏差(Mpa)P2GGB12244-1989渗漏量0工作温度0℃-80℃零件名称零件材料阀体阀盖底盖WCB阀座2Cr13阀瓣2Cr13阀杆2Cr13缸套2Cr13/25(镀硬铬)活塞2Cr13O型圈丁腈橡胶密封圈丁腈橡胶膜片夹织物丁腈橡胶调节弹簧60Si2Mn弹簧薄膜式减压阀流量系数(Cv)
二、Y42X弹簧薄膜式减压阀主要技术参数和性能指标:
本系列减压阀属于先导活塞式减压阀。由主阀和导阀两部分组成。主阀主要由阀座、主阀盘、活塞、缸套、弹簧等零件组成。导阀主要由阀座、阀瓣、膜片、弹簧、调节弹簧等零件组成。通过调节调节弹簧压力设定出口压力,利用膜片传感出口压力变化,通过导阀启闭驱动活塞调节主阀节流部位过流面积的大小,实现减压稳压功能。
公称压力(Mpa) | 1.6 | 2.5 |
壳体试验压力(Mpa)* | 2.4 | 3.75 |
密封试验压力(Mpa) | 1.6 | 2.5 |
较高进口压力(Mpa) | 1.6 | 2.5 |
出口压力范围(Mpa) | 0.1-1.0 | 0.1-1.6 |
压力特性偏差(Mpa)△P2P | GB12246-1989 | |
流量特性偏差(Mpa)△P2G | GB12246-1989 | |
最小压差 | 0.15 | 0.15 |
渗漏量 | GB12245-1989 | |
*:壳体试验不包括膜片、阀盖。
三、Y42X弹簧薄膜式减压阀主要零件材料:
零件名称 | 零件材料 |
阀体 阀盖 底盖 | WCB |
阀座 阀盘 | 2Cr13 |
缸套 | 2Cr13/25(镀硬铬) |
活塞 | 2Cr13/铜合金 |
活塞环 | 合金铸铁 |
导阀座 导阀杆 | 2Cr13 |
膜片 | 1Cr18Ni9Ti |
主阀弹簧 | 50CrVA |
导阀主弹簧 | 50CrVA |
调节弹簧 | 60Si2Mn |
四、Y42X弹簧薄膜式减压阀流量系数(Cv):
DN | 15 | 20 | 25 | 32 | 40 | 50 |
Cv | 1 | 2.5 | 4 | 6.5 | 9 | 16 |
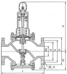
五、Y42X弹簧薄膜式减压阀连接尺寸:
公称通径DN | G | L | H | Hl |
15 | 1/2" | 140 | 295 | 90 |
20 | 3-4" | 140 | 330 | 98 |
25 | 1" | 160 | 330 | 110 |
32 | 1-1/4" | 180 | 330 | 110 |
40 | 1-1/4" | 200 | 345 | 125 |
50 | 2" | 230 | 345 | 125 |
Y42X-1.6-DN15,Y42X-1.6-DN20,Y42X-1.6-DN25,Y42X-1.6-DN32,Y42X-1.6-DN40,Y42X-1.6-DN50,弹簧薄膜式减压阀


