结构特点:
1、缓冲弹簧减震,与工件柔性接触。
2、不同行程限位保护。
3、耐磨导杆(寿命更长)。
4、多种连接螺纹。
型号及其含义:
| KI | 5 | 10 | -V | -A10 |
| (1) | (2) | (3) | (4) | (5) |
1: E 外置弹簧 I 内置弹簧
2: 吸盘连接螺纹
3: 缓冲行程6.10.25
4: 内螺纹
5: 固定安装连接外螺纹M10×1
| KE510-V-A10参数 | KE510 -A10参数 | |||||||
| 缓冲行程 | A | B | L | 缓冲行程 | A | B | L | |
| 06 | 6.5 | 15 | 35.5 | 06 | 6.5 | 15 | 37 | |
| 10 | 10.5 | 44 | 68.5 | 10 | 10.5 | 44 | 70 | |
| 25 | 25.5 | 44 | 83.5 | 25 | 25.5 | 44 | 85 | |
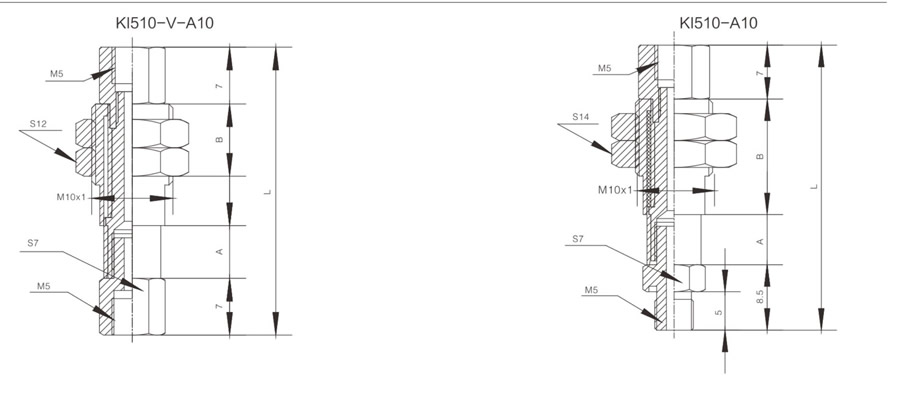
产品外形尺寸:


KE506-V-A10,KE510-V-A10,KE525-V-A10,KI506-V-A10,KI510-V-A10,KI525-V-A10


