压力控制器 D511/7D 0810111 0810211
| D511/7D 压力控制器 D511/7D控制器采用波纹管式传感器。可用于腐蚀性气体和液体介质。控制器的设定值可调,调节范围-0.1……6.3Mpa。 特点: 使用温度范围大,可用语腐蚀性介质。 |
![]() |
| ◇ 主要技术性能: 工作粘度:<1×10-3m2/s 开关元件:微动开关 外壳防护等级:1P65 (符合DIN40050与GB4208中1P65相当) 环境温度:-40~50℃ 介质温度:0~120℃ |
抗振性能:D511/7D 40m/s2 重复性误差:≤1% 触点容量:DC 220V 6A(阻性) (若有特殊要求,可参阅我厂编制的 应用手册介绍) |
| ◇ 规 格: | |||||||||||||||||||||||||||||||||||||||||||||||||||||||||||||
| ● 切换差不可调 | |||||||||||||||||||||||||||||||||||||||||||||||||||||||||||||
|
|||||||||||||||||||||||||||||||||||||||||||||||||||||||||||||
| ● 切换差可调 | |||||||||||||||||||||||||||||||||||||||||||||||||||||||||||||
|
|||||||||||||||||||||||||||||||||||||||||||||||||||||||||||||
| ◇ 设定值的调整: |
1、不可调切换差的控制器设定值调整步骤,举例说明如下: [例1]:选用订货号为0811611的控制器,要求将压力上升至0.5MPa(上切换值)发出触点信号,起具体步骤参见1.1~1.5(如图一所示):1.1 松开锁紧器,将产品旋入压力校验台的螺纹接口上,注意必须用板手夹持传感器的平面部分,绝对防止开关壳体与传感器发生相对转动。 1.2 打开盖板,将电缆穿过电缆接口接入端子板中,电缆另一头接上万用表。 1.3 将压力加至0.5MPa,此值可从标准压力计中读出。 1.4 顺时针旋动设定值调节螺杆,使设定值由大变小,直至开关触点在0.5MPa处切换。 1.5 旋紧锁紧器,调节压力校验台的压力,使压力在0.5MPa上下来回变化,检验压力上升时,触点的切换值是否是0.5MPa,此值即为要设定的上切换值。其对应的下切换值应是0.5MPa减去切换差0.035MPa(左右),即为0.465MPa(左右)。 [例2]:选用订货号为0811511的控制器,要求将压力下降至0.3MPa(下切换值)发出触点信号,起具体步骤参见1.6~1.10: 1.6 同1.1。 1.7 同1.2。 1.8 将压力加至0.3MPa,此值可从标准压力计中读出。 1.9 逆时针旋动设定值调节螺杆,使设定值由小变大,直至开关触点在0.3MPa时切换。 1.10 旋紧锁紧器,调节压力校验台的压力,使压力在0.3MPa上下来回变化,检验压力下降时触点的切换值是否是0.3MPa,此值即为要设定的下切换值。其对应的上切换值应是0.3MPa加上切换差0.032MPa(左右),即为0.332MPa(左右)。 2、可调切换差的控制器设定值调整步骤,举例说明如下: [例3]:选用订货号为0801611的控制器,要求将压力上升至0.8MPa发出触点信号,压力下降至0.5MPa时触点返回(如图二所示):2.1 同1.1。 2.2 同1.2 2.3 将压力加至0.5MPa,此值可从标准压力计中读出。 2.4 先调下切换值,逆时针旋动设定值调节螺杆,直至开关触点在0.5MPa处切换。 2.5 再逆时针旋动切换差调节螺杆,使切换差从最小开始增大,直至压力上升至0.8MPa触点动作。 2.6 旋紧锁紧器,调节压力值在0.5~0.8MPa范围内来回变化,检验压力上升时,触点的切换值是否是0.8MPa,此值即为要设定的上切换值,检验压力下降时,触点的切换值是否是0.5MPa,此值即为要设定的下切换值。 |
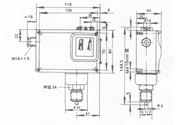
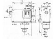
| ◇ 外形及安装尺寸: | ||
图1 |
图2 |
图3 |
| ◇ 选用和安装: | |
|
● 选用控制器,最好使预定的设定值位于控制器设定值调节范围的中间部分。一般为调节范围的20%-80%。
● 控制器若要安装在室外时,应给予足够的防护,以免受环境温度的剧烈变化,阳光直接辐射,腐蚀性气体或水的渗入。 ● 安装电缆时,应选择合适的电缆外径,并将电缆引入处的压紧螺母拧紧,以免电缆松动,并防止水和灰尘的渗入。 ● 对于有压力峰值及脉 冲压力的受控液体介质,可在控制器接口上安装一个压力冲击阻尼器,以消除不利影响。● 通断电流不能大于额定值。 ● 安装(或拆卸)必须用扳手夹持传感器的平面部分,绝对防止传感器与开关壳体发生相对转动。(如右图所示) 管道接头旋入传感器内深度不可超过12mm。 |
|
![]() |
单刀双掷微动开关作用过程: 接线端1-3:压力上升至上切换值时接通。 接线端1-2:压力上升至上切换值时端开。 |
| ◇ 附 件: | ||
|
可供选用附件目录编号:0574770、0574769、0574768、0574772
|
||
|




图1
图2
图3
冲压力的受控液体介质,可在控制器接口上安装一个压力冲击阻尼器,以消除不利影响。
带密封圈及焊接管的螺帽G1/2
7D型安装支架