手机版
二维码
欢迎访问昌林自动化官方网站!
了解产品
品牌站
搜索
首页
了解产品
资讯动态
品牌站
下载中心
首页
>
了解产品
>
油泵 齿轮泵 组合泵
>
液压马达/气动马达
>
液压马达
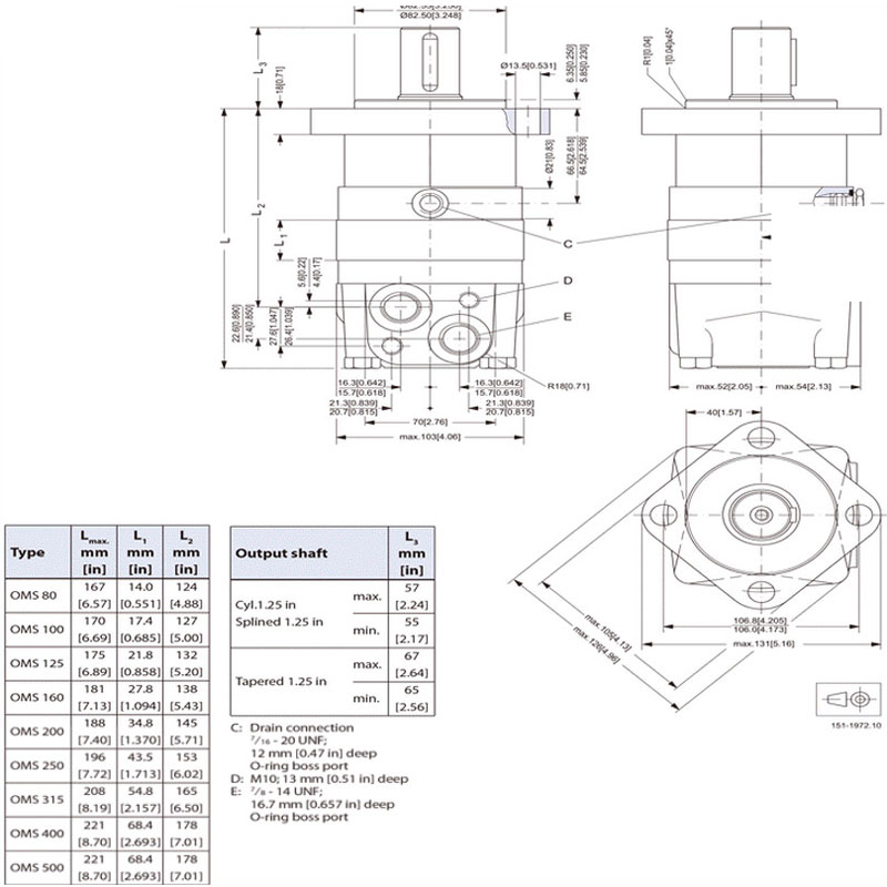
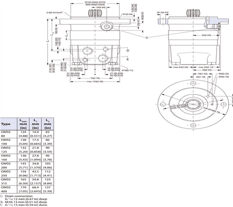
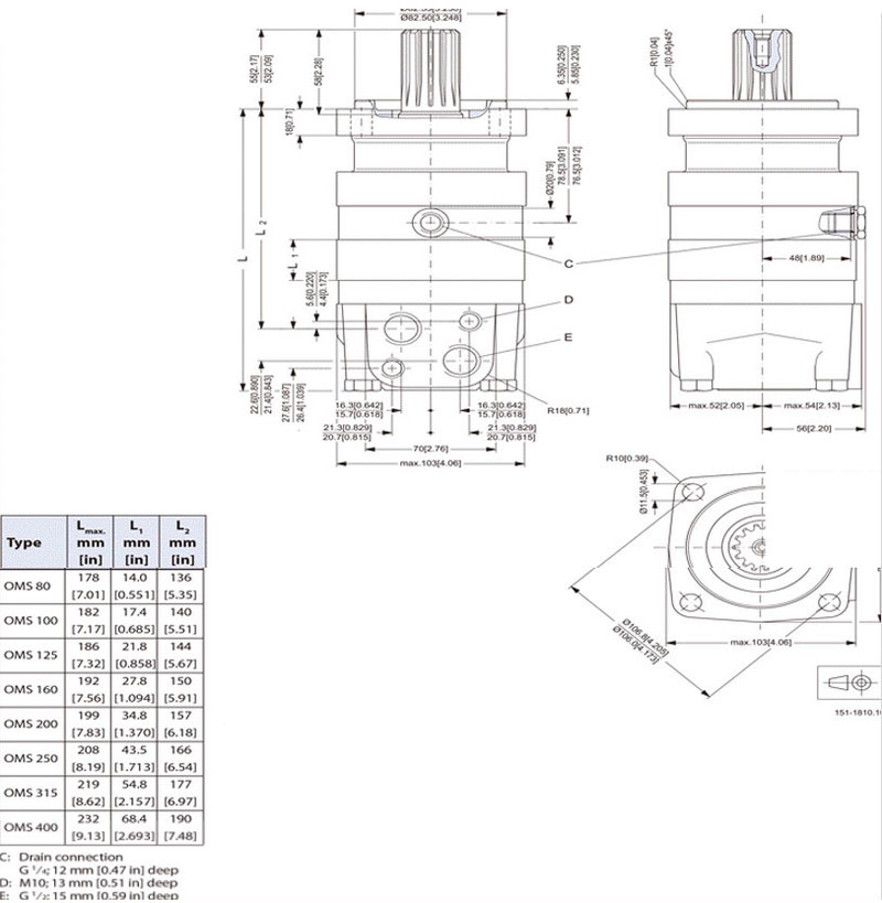
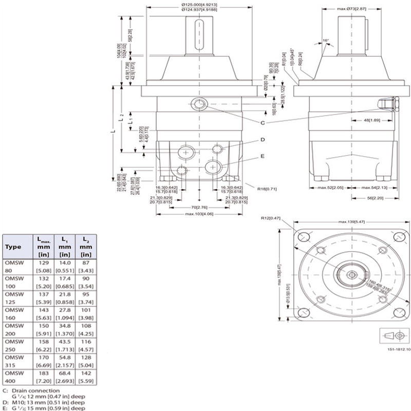
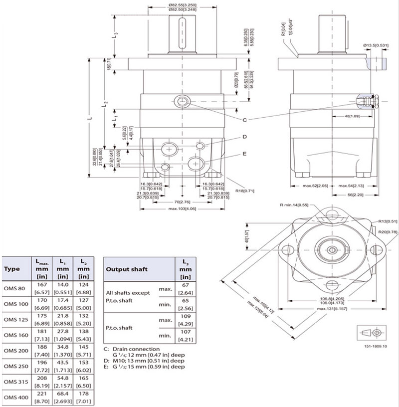
OMS80,OMS100,OMSW125,OMSW160,OMSS200,OMSS315,OMSW400,blince摆线液压马达
点击图片查看原图
型号:
OMS80,OMS100,OMSW125,OMSW160,OMSS200,OMSS315,OMSW400
PDF下载:
如需产品详细说明请与销售客服联系
浏览次数:
555
公司基本资料信息
联系人
销售员 1516(先生)
电话
13861877712
地区
江苏-无锡市
地址
无锡市会北路28-135
详细说明
OMS80,OMS100,OMSW125,OMSW160,OMSS200,OMSS315,OMSW400,blince摆线液压马达
OMS125,OMS160,OMS200,OMS250,OMS315,OMS400,OMS500,
OMSW80,OMSW100,OMSW200,OMSW250,OMSW315,OMSW500,
OMSS80,OMSS100,OMSS125,OMSS160,OMSS250,OMSS400,OMSS500,
更多
>
本企业其它产品
OMS80,OMS100,OMSW125
BM2-125,BM2-160,BM2-
OK36,OK50,OK80,OK100
OMM-8,OMM-12.5,OMM-2
BMR36,BMR50,BMR80,BM
BMH-200,BMH-250,BMH-
OZ36,OZ50,OZ80,OZ100
BMT160,BMT200,BMT230
0
条
相关评论